Haus K-H

Bauaufgabe: Einfamilienhaus / Neubau
Auftraggeber: Privat
Standort: Wien
Umsetzung: 2010 - 2012

Photos: © Kurt Kuball

Ausführende Firmen:

Baumeister: Frey;
Schlosser: Frey;
Installateur: Schnauer;
Elektriker: Karner;
Dachdecker/Spengler: Hartmann;
Tischler: Mayr+Glatzl;

Mitarbeit: DI Johanna Köstlinger

Die Zusammenarbeit der Auftraggeber und des Architekten ergab sich aus einer Unterstützung bei der Grundstückssuche. Aufgrund der privaten Freundschaft gab es seitens des Architekten eine Hilfestellung mit der Bedingung ihn zur Erarbeitung eines Konzeptes einzuladen. Nach dem Grundstückskauf wurde auf Anraten des Architekten ein Planerauswahlverfahren vorgenommen, aufgrund dessen sich die Auftraggeber für Arch. Illichmann entschieden.

weiterlesen...

Die persönliche Verbindung der Beteiligten hat sich im Laufe der Projektausarbeitung als fruchtbar und sehr positiv herausgestellt. Der Prozess der Entwurfsplanung hat ein gutes Jahr in Anspruch genommen, wobei im Zuge der Bearbeitung zwar viele Varianten erarbeitet, gewisse Grundprinzipien aber bis zum Schluss beibehalten wurden. Auch die Bauphase war geprägt von einem respekt- und vertrauensvollen Miteinander und einer produktiven Zusammenarbeit zwischen Besteller und Planer.

Planungsgrundlage war der Wunsch der Bauherren nach einem Haus für die 5-köpfige Familie, in dem der Garten und die Jahreszeiten integriert werden. Da das Grundstück Süd-Ost / Nord-West längsgestreckt ist, wurde das Gebäude nicht parallel zur Grundstücksgrenze, sondern nach der Sonne ausgerichtet positioniert. D.h. es wurde nach Süden verdreht, und dadurch mit seiner Längsfassade Richtung Sonne und mit den erdgeschossigen Aufenthaltsräumen in die Längsrichtung des Gartens orientiert. Morgensonne in der Küche und einigen Schlafräumen, Sonne den ganzen Tag in den Haupträumen und Abendsonne in ausgewählten Bereichen, sind das Ergebnis dieser Verdrehung. Ein weiterer Vorteil dieser Positionierung war, dass im Elternbereich der Blick an dem Nachbargebäude vorbei in die westlich gelegenen Weinberge möglich wurde.

Auch die im Keller befindlichen Aufenthaltsräume sollten Tageslicht bekommen; daher wurde die Höhenlage des Gebäudes so gewählt, dass durch die Geländemodellierung an der Ostseite ein Lichthof entstand, welcher die dort liegenden Kellerräume aufwertet.

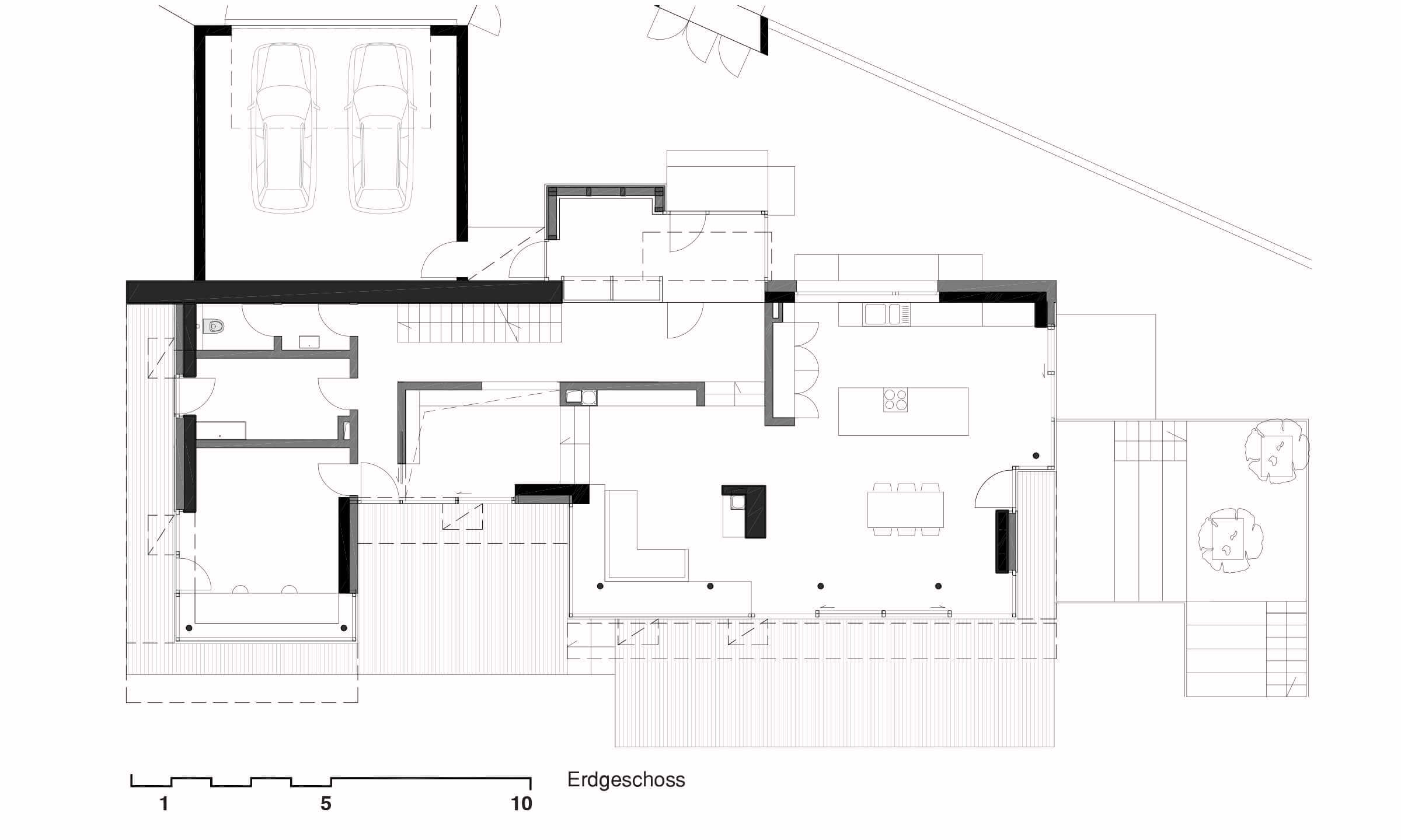
Das Erdgeschoß besteht in erster Linie aus einem großen Raum mit Zonen fürs Kochen, Essen und Wohnen. Dieser gemeinsame Wohnraum steht durch großflächige Verglasungen in enger Verbindung zu den Terassen- und Gartenflächen. Im Erdgeschoß finden sich zusätzlich noch ein Wirtschafts- und ein Büroraum. Im Obergeschoß befinden sich die Rückzugsorte, wie Schlaf- und Badezimmer. Die Nordwand wurde in verputzter Massivbauweise, die restlichen Außenwände als mehrschaliger Aufbau mit hinterlüfteter Holzfassade ausgeführt. Beheizt wird das Haus mittels Erdwärme (Tiefenbohrungen). Auf dem Flachdach wurden Photovoltaikpaneele aufgestellt.

Zurück

Back to top ::before