NGG - Tagesgruppe

Bauaufgabe: Neubau
Auftraggeber: 2 Privatstiftungen
Standort: Gänserndorf-Süd / Niederösterreich
Umsetzung: 2016 - 2019

Photos: © Kurt Kuball

Ausführende Firmen:

Baumeister: Lieb-Bau-Weiz;
Zimmermann: Lieb-Bau-Weiz;
Fenster: Kapo;
Dachdecker/Spengler: Hirschner/Wukitsevits;
Haustechnik und Elektro: Klampfer;
Estrich: Nussmüller;
Estrichoberfläche: Steinzeit;
Tischler und Innentüren: Zottl;
Maler: Regber;

Mitarbeit: Maria Pernegger

Das Projekt „NGG-Natürlich Gemeinsam in Gänserndorf“ ist ein inklusives Wohn- und Tagesgruppenprojekt in dem behinderte Erwachsene gemäß ihren Bedürfnissen wohnen sowie Therapien, Förderung und Beschäftigung erhalten.

weiterlesen...

Allgemeine Projektbeschreibung siehe Projekt NGG – Wohngruppe.

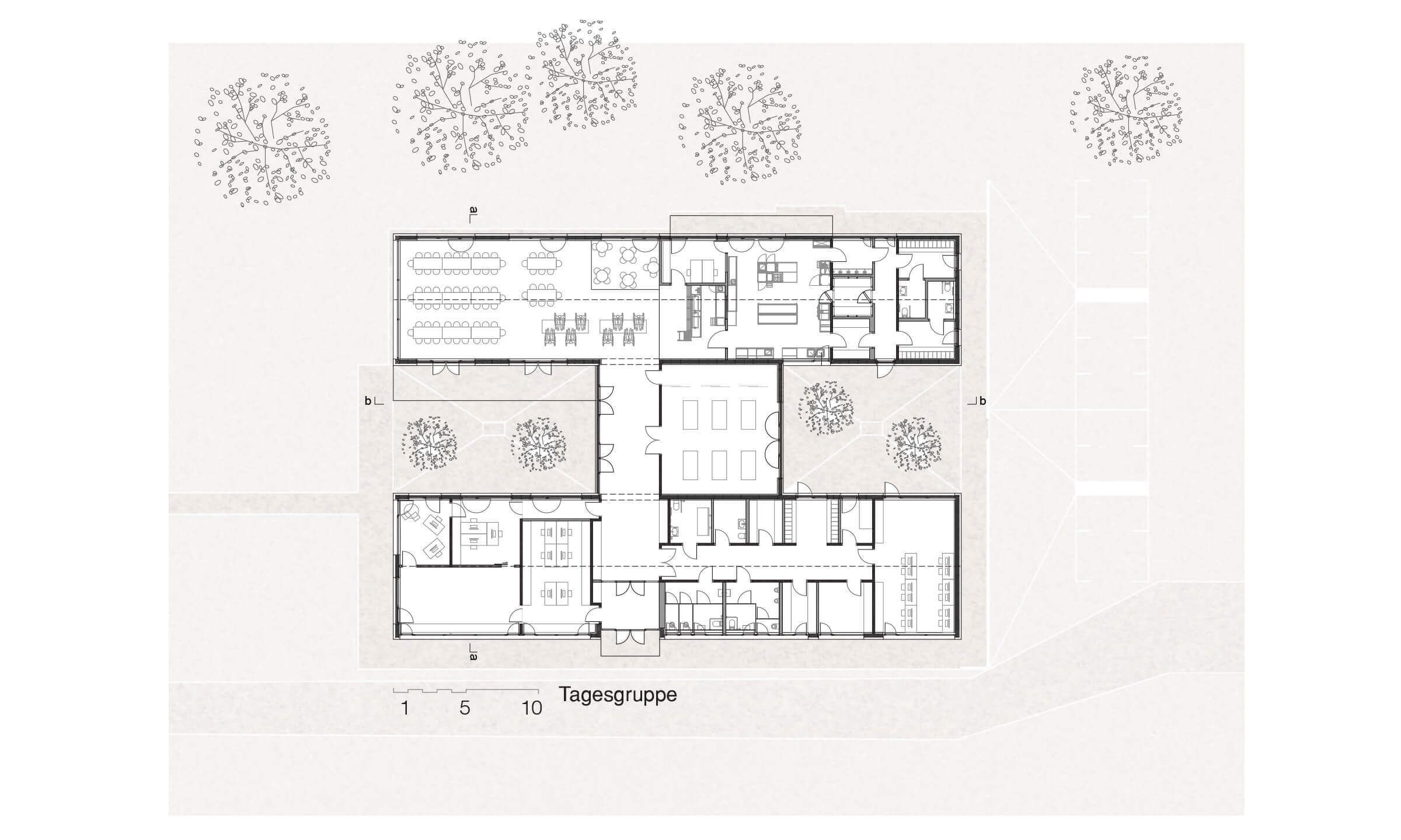
Detailbeschreibung: Beim Tagesgruppengebäude galt es fünf verschiedenen Funktionsgruppen in einem gemeinsamen Gebäude zu vereinen. Verschiedene Gebäudekonfigurationen wurden untersucht. Die gewählte H-Form ermöglicht eine gemeinsame Organisation bei größtmöglicher Autonomie der fünf Funktionen: Gewerbeküche mit Nebenräumen, Speise- bzw. Mehrzwecksaal für bis zu 120 Personen, Büroräumlichkeiten, Tagesgruppenraum („Media&More 2“) mit Sanitär- und Nebenräumen, sowie der Therapieraum.

Im Zuge der Projektumsetzung entstanden neben dem Tagesgruppengebäude auch noch ein Wohngruppengruppengebäude, ein Schulungsgebäude sowie ein Tiertherapiehof. Siehe gesonderte Projektdokumentation.

Zurück

Back to top ::before