PHS- Parkhaus Stachegasse

Bauaufgabe: Neubau
Auftraggeber: Clemens Stiegholzer
Standort: Stachegasse / Wien Hetzendorf
Umsetzung: 2016 - 2020

Architektur: Architekt Sebastian Illichmann
in Kooperation mit Architekt Matthäus Wagner

Photos: © Kurt Kuball

Ausführende Firmen:

Baumeister: SSB;
Zimmermann: Lieb-Bau-Weiz;
Fenster: WKF;
Dachdecker/Spengler: Wukitsevits;
Haustechnik: Hopferwieser+Steinmayr;
Elektro: Wazek;
Holzboden: Parkett.at;
Bodenschichtungen: Floortec;
Innentüren: ei2;
Aufzüge: Liftwerk;
Fassade: EB Bau;
Statik: werkraum ingenieure;
Haustechnik- und Elektroplanung: S und P;


Mitarbeit: Thomas Kersic, Maria Pernegger, Sebastian Pernegger, Flora Struber

 

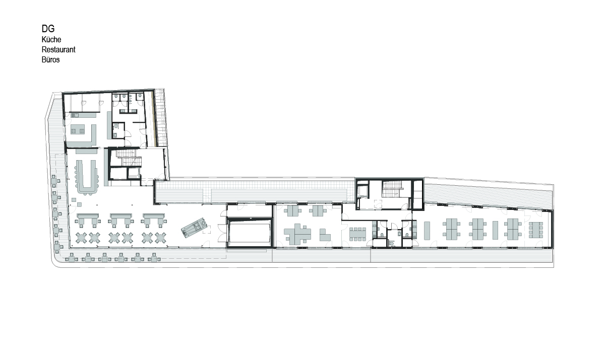
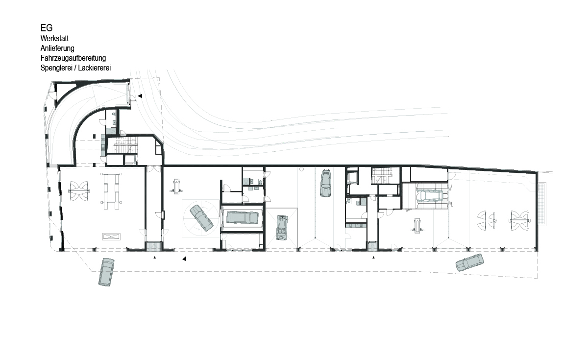
Parkhaus für Oldtimer. Bei diesem Projekt dreht sich alles um Oldtimer-Fahrzeuge. Diese haben einen hohen finanziellen, aber auch kulturellen Wert.

weiterlesen...

Für Ihren Erhalt benötigt es eine adäquate Unterbringung mit speziellen Rahmenbedingungen. Diese bietet, auf dem Areal der ehemaligen Fritze-Lacke-Fabrik in Wien-Hetzendorf, das „Classic Depot“ auf gesamt rund 5.250m2. Das Gewerbeobjekt vereint rund um das Thema Oldtimer folgende Funktionen: Tiefgaragenebene für 50 Fahrzeuge, im Erdgeschoß Werkstatt, Anlieferung mit Drehscheibe und PKW-Aufzug, Fahrzeugaufbereitung und Spenglerei/Lackiererei. Im Obergeschoß 1 und 2 befinden sich die Einstellflächen für die Fahrzeuge. Diese Flächen sind beheizt, belüftet und die Fassade mit UV-Schutzgläsern sowie außenliegendem Sonnenschutz ausgestattet. Ergänzt werden die Einstellflächen durch einen 3-seitig verglasten Besprechungs- bzw. Seminarraum mit Blick auf die Fahrzeuge. Der gesamte Bereich ist zum einen zutrittsgesichert und videoüberwacht, zum anderen aber für die Einsteller rund um die Uhr geöffnet.

 

Zurück

Back to top ::before