Villenanlage Hinterbrühl

Bauaufgabe: Neubau von 4 Einfamilienhäusern
Auftraggeber: Tiller Bauträger GesmbH
Standort: 2371 Hinterbrühl / NÖ
Umsetzung: 2012-2015

Architektur: Architekt Sebastian Illichmann
in Kooperation mit Architekt Jon Prix

Photos: © Kurt Kuball

Ausführende Firmen:

Baumeister: Kager-Massivbau;
Zimmermann/Dachdecker/Spengler: Ratay;
Fenster: Baumann;
Schlosser: Flatschart;
Fassade: Scharf;
Installateur: Kerschbaumer;
Elektriker: Leitner;

Mitarbeit: Johanna Köstlinger und Christian Burggraf

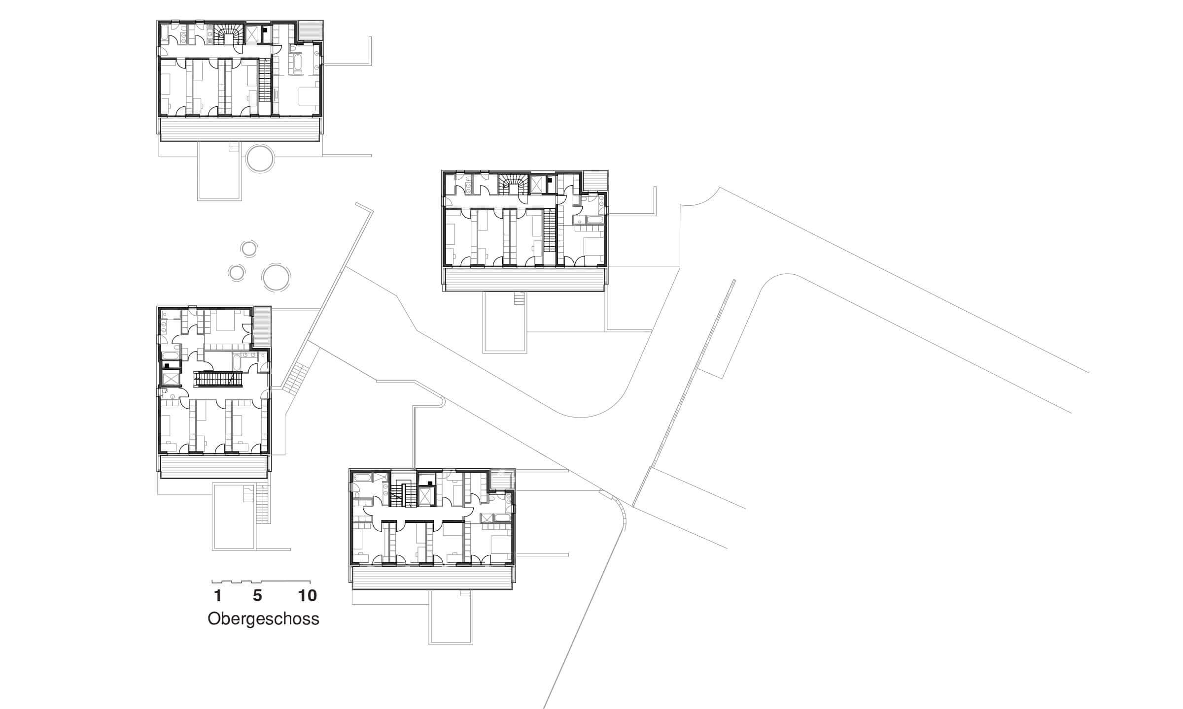
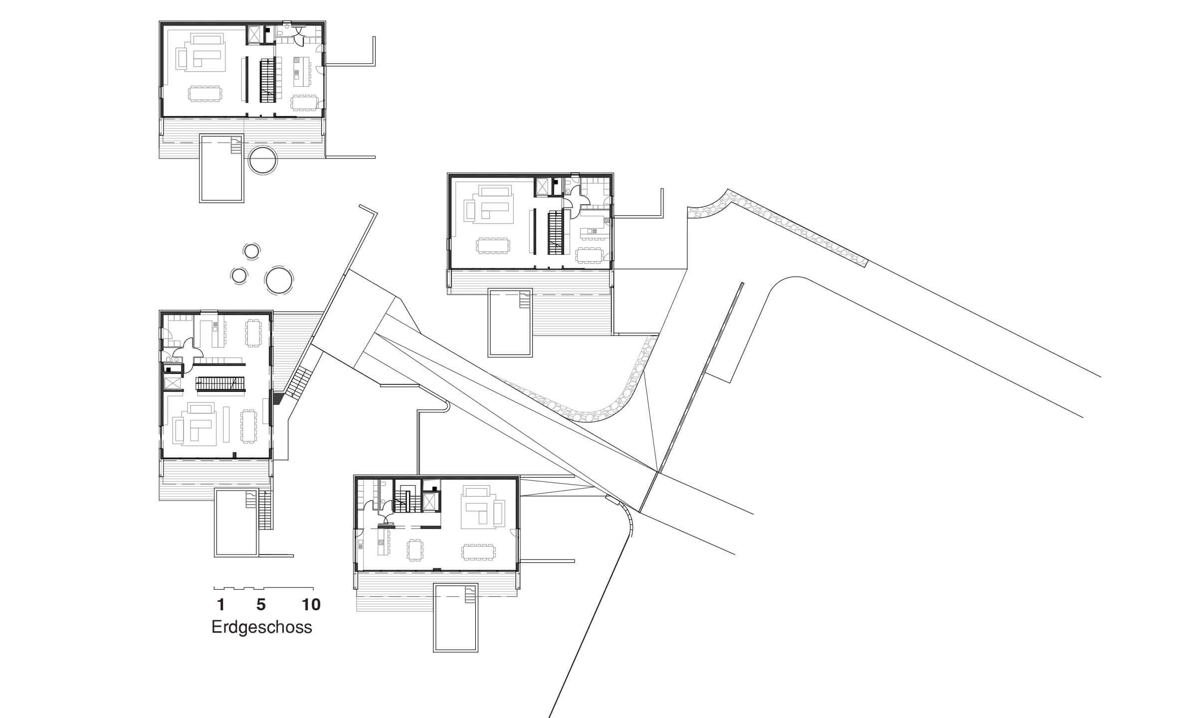
Das Grundstück ist ein sehr steiler Süd-Ost-Hang mit reizvollen Ausblicken in die umgebenden Hügel und Föhrenwälder. Die 4 Häuser wurden so positioniert und ausgerichtet, dass ein Maximum an Aussicht und Besonnung, aber auch an Privatsphäre geschaffen werden konnte.

weiterlesen...

Ost-, Nord-, und Westfassaden sind relativ geschlossen gehalten. Die Südseiten mit großen vorgelagerten Balkonen und Terrassen sind im OG großflächig, und im EG über die gesamte Gebäudebreite geöffnet.

Aufgrund der Hanglage wurde für alle 4 Häuser eine Typologie entwickelt, bei welcher der Zugang ins Haus im Souterrain erfolgt. Ebenso der Nebeneingang von der (in den Hang eingegrabenen) Garage. Im Souterrain befinden sich neben Technik- und Lagerräumen auch Aufenthaltsräume, welche hangabwärts liegend Terrassentüren ins Freie haben und als eigene Wohneinheit genutzt werden könnten.

Das Erdgeschoß dient als Wohn-, das Obergeschoß als Schlafebene. Zusätzlich gibt es auf dem Flachdach auch noch ein Atelierzimmer. Alle Ebenen sind mit einem Personenaufzug verbunden.

Als Bauweise wurden 25cm Stahlbetonwände mit 20cm Vollwärmeschutz gewählt. Die Flachdächer wurden als Warmdach mit bituminöser Abdichtung und Kiesschüttung ausgeführt. Die Dachgeschoßaufbauten sind Holzkonstruktionen in Pfosten-Riegel-Systematik bzw. Brettsperrholzdecken.

Zurück

Back to top ::before