Wohnbau Korneuburg / Flötzersteig

Bauaufgabe: Neubau Mehrfamilienhaus
Auftraggeber: Premei Bauträger
Standort: Korneuburg / NÖ
Umsetzung: 2014-2016

Architektur: Architekt Sebastian Illichmann
in Kooperation mit Architekt Matthäus Wagner

Photos: © Kurt Kuball

Ausführende Firmen:

Baumeister: Guttmann;
Zimmermann: Fahrenberger;
Dachdecker/Spengler: Haberhauer;
Fenster: WKF;
Schlosser: Ockermüller;
Fliesen: Wurm;
Installateur: Integral;
Elektriker: Gregorits;
Maler: Petter;
Boden: Wiedner;

Mitarbeit: Sebastian Pernegger

 



Deutscher Architektur Verlag
Wohnen. Zukunftsorientiertes Bauen. 2020
Edition 1:100

Das realisierte Wohnhaus ist in Korneuburg im südlichen Stadtteil situiert. Das Eckgrundstück ist zweiseitig von öffentlichen Straßen begrenzt. Der Flötzersteig erscheint als Sackgasse, da die Straße parallel zu den Bahngleisen nicht asphaltiert ist, ein Grünstreifen mit Bäumen trennt die Straße von den Bahngleisen.

weiterlesen...

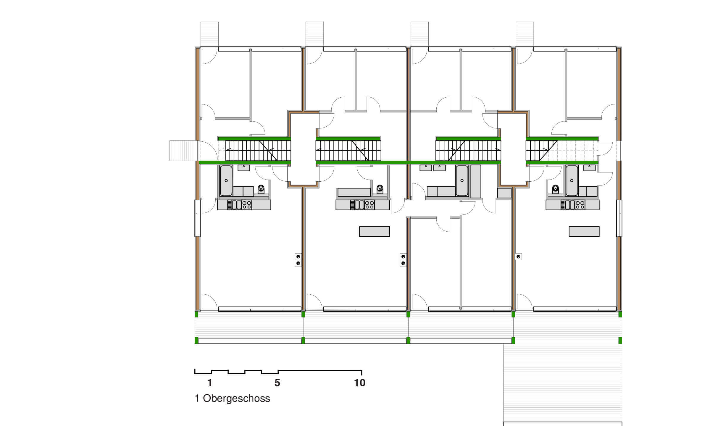
Das Wohngebäude weist 11 Wohnungen auf und ist in offener Bauweise errichtet. Das Gebäude ist nicht unterkellert, die Einlagerungsräume sind auf der Erdgeschossebene geplant. Der östliche Bauteil überragt die Parkplätze und bietet einen überdeckten Fußweg zum Eingang des Gebäudes.

Die Erschließung erfolgt über zwei gegenüberliegende Stiegenanlagen. Die Stiegen teilen das gesamte Gebäude in der Längsrichtung in zwei Hälften. Durch geschickte Anordnung der Räume (Gänge unter den Podesten der Stiegen verbinden die nördliche und südliche Haushälfte) und der tragenden Struktur haben alle Wohnungen die Wohn/Esszimmer in den Süden gerichtet, die Schlafräume sind durchwegs in Nordrichtung positioniert.

Durch eine verschränkte Anordnung der internen Stiegen konnten 4 Wohnungen ein Teil des Dachgeschoßes und somit auch der Terrassenflächen zugeordnet werden.

Das Gebäude ist im Erdgeschoss in Stahlbeton (Hohlwände mit Elementdecken) errichtet. In den oberen Geschoßen bilden Wände aus Brettsperrholz im Achs-Abstand von 6.19m die tragende Struktur. Darüber spannen sich die Decken aus Brettsperrholz, als Durchlaufträger über jeweils zwei Achsen mit einer Spannweite von 12.38m. Hauptstiegen und die angrenzenden Wände sind aus Stahlbeton. Fassade: Dämmung + Verputz.

1.OG, 2.OG und Dachgeschoss: tragende Wände weitgehend und Decken durchgehend Brettsperrholz mit außenseitiger Dämmung und Verputz.

Fassade im Dachgeschoß: offene Lärchenschalung.

Zentrale Heizanlage mit Gas betrieben. Fußbodenheizung in allen Wohnungen. Warmwasser mittels Boiler in den Wohnungen.

Zurück

Back to top ::before